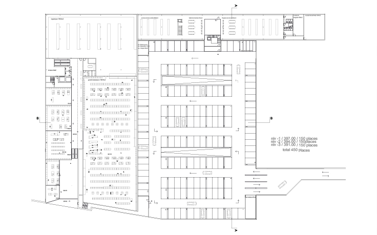
• Place Perdtemps
    Nyon

    Maître de l’ouvrage
    Ville de Nyon

    Team 2b
    S.Bender
    Ph.Béboux
    S.Greisinger
    M.Peikert
    C.Nga Mbida

    Architecte paysagiste
    bbz landschaftarchitekten Bern

    Ingénieur civil
    Mantegani & Wysseier Ingenieure & Planer

    Ingénieur trafic
    Büro Dudler, Raum und Verkehrsplanung
<< < idx/count >