|
|
-
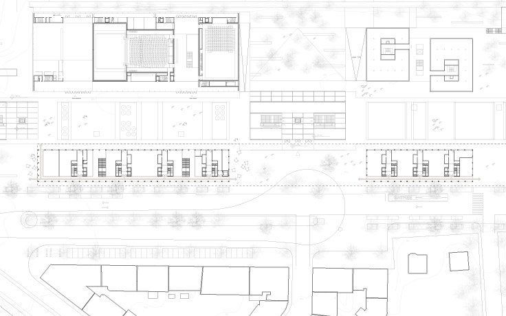
CFF Eaux Vives, Genève
Logements, bureaux, galerie commerciale et parking
Lots D, E
Projet finaliste
Maître d'ouvrage
SBB-CFF
Team 2b
S.Bender
Ph.Béboux
S.Heath
M.Tarantola
A.Chesseret
G.Lili
Pool pluridisciplinaire
Ingphi, Lausanne
EGC-Chuard, Meyrin
Regtec, Lausanne
Images
Marco de Francesco, Lausanne
-
-
-
-
-
-
-
-
|